Online Catalog

ヒートシンク接合品

JMD1N - MD100 シリーズ ヒートシンク接合品

規格名称 : {{MODELNAME}} 未定の項目があります
シリーズ
幅 (W)
x
長さ (L)
-
全高 (H)
表面処理
単位:mm
幅:{{suggestedSize.WIDTH}} または {{suggestedSize.WIDTH_2ND}} を推奨します。
長さ:{{suggestedSize.LENGTH}} または {{suggestedSize.LENGTH_2ND}} を推奨します。
幅(W)が{{SIZEMAX.W}}より大きい場合は営業部へお問合せ願います。
長さ(L)が{{SIZEMAX.L}}より大きい場合は営業部へお問合せ願います。
幅(W)が{{SIZEMIN.W}}より小さい場合は営業部へお問合せ願います。
長さ(L)が{{SIZEMIN.L}}より小さい場合は営業部へお問合せ願います。

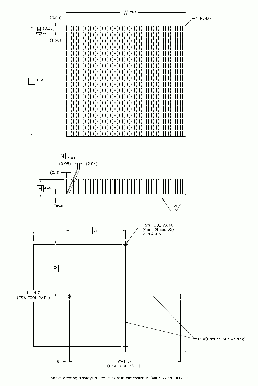
摩擦攪拌接合(FSW)によって接合した製品です。FSW 詳細はヒートシンク接合サービス

heat sink image
製品仕様
HS連結個数 W(mm) L(mm) H(mm) A(mm) B(mm) P(mm) N M
幅方向 {{MODEL.COUNT_HS_W}} x 長さ方向{{MODEL.COUNT_HS_L}}- {{MODEL.W}} {{MODEL.L}} {{MODEL.H}} {{MODEL.A}} {{MODEL.B}} {{MODEL.P}} {{MODEL.N}} {{MODEL.M}}
W,Lなどの寸法を入力願います。
幅方向2連結
100 < W ≤ 193.0
L ≤ 100
Specification
長さ方向2連結
W ≤ 100
100 < L ≤ 179.4
Specification
幅方向2連結、長さ方向2連結
100 < W ≤ 193.0
100 < L ≤ 179.4
Specification
サイトマップ | お問合せ | © 2017 Alpha Company Ltd.